
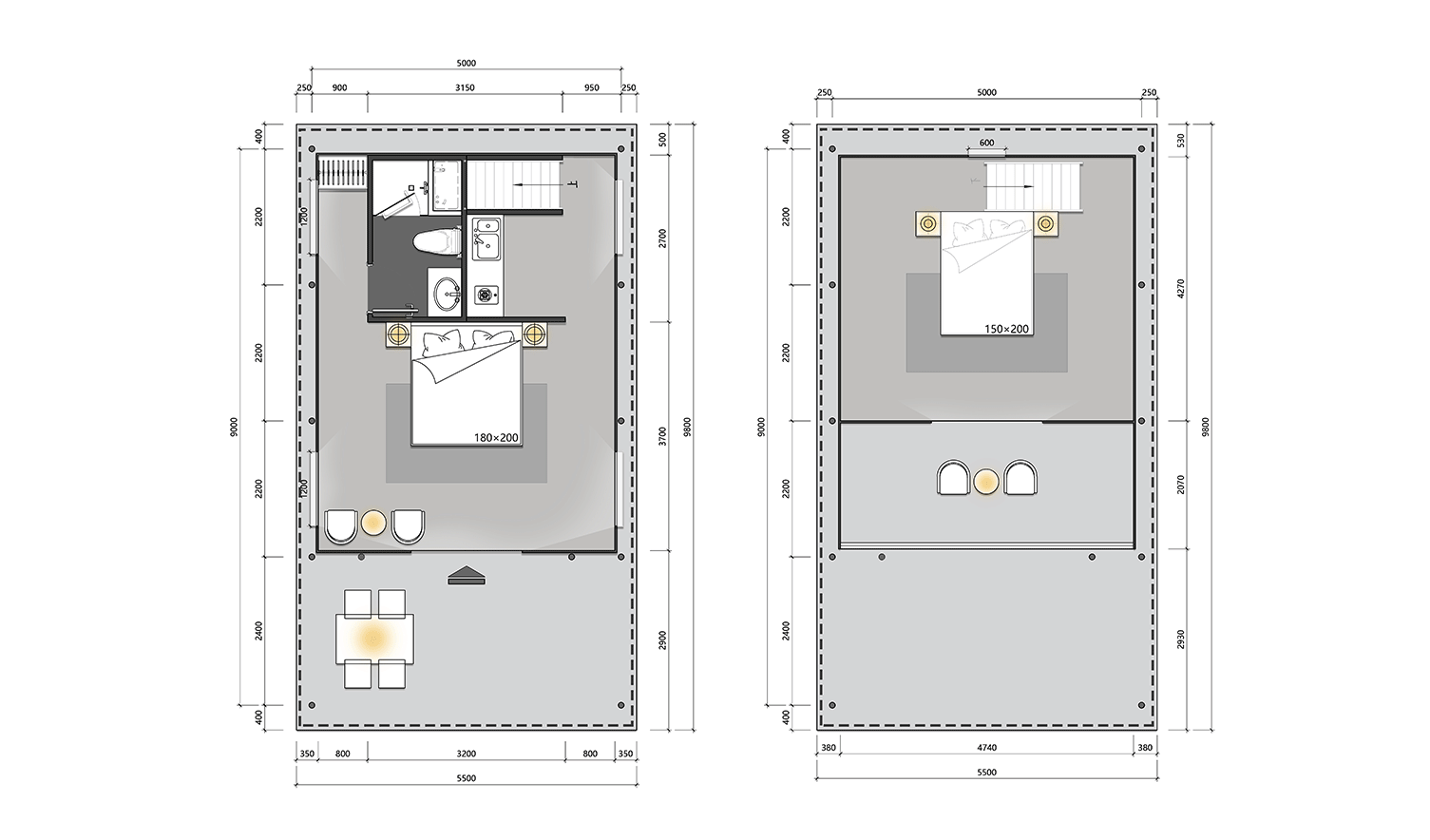
• Main Dimensions:5m×9m
•Indoor Area:31+20㎡
• Indoor Dimensions:4.8m×6.4m
•Terrace Area:13+11㎡
• External Height:5m
• Internal Height: 2.2m
• Structure Material: Imported - Pinus sylvestris
• Connector Material: Rust-Proof Steel
• Outer Tent Material: 850g-PVC Coated Fabric
• Inner Tent Material: 370g-Oxford cloth
• Wind Resistance Level: Level 8
• Service Life: 10 Years
• Overall Performance: National Standard Flame Retardant, Moisture-Proof and Mold-Resistant, Flexible Installation, No Environmental Restrictions
• Installation Efficiency: 5-person crew + 1 day completion + 1 set of tools (5-1-1 installation metric)


The BL45 Safari Tent differ from traditional buildings in that its construction is not restricted by terrain. It can be built in mountains, plains, deserts, lakes, seaside, and other scenarios.
YARDS tents are easy to set up, inexpensive, and of high quality, making them the best choice for camping.
 Change configuration
 Change configuration









Payment term: TT 30% deposit on order, 70% balance pay before shipping.






 
                             
                         
                         
                     
                                     
                                
 
                                     
                                     
                                     
                                     
									 
									 
									 
									 
									
 
										