技术数据
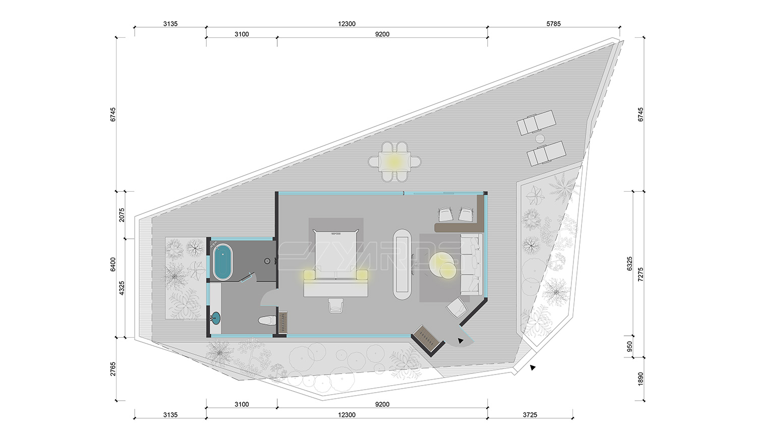
• 户型空间:1室1厅1卫
• 主体尺寸:21m×14m
• 室内尺寸:6.2m×12.1m
• 室内面积:72㎡
• 露台面积:137㎡
• 外部高度:5.3m
• 内部高度:3.7m
• 结构材料:钢铝结构
• 墙体规格:10~15cm装配式保温墙
• 外墙材料:2mm铝合金板/雪松木板/WPS板
• 幕墙规格:5/20A/5中空玻璃幕墙
• 抗风等级:12级
• 使用年限:30年
• 产品特征:4天快速安装;可移动;保温隔热;防腐性强
• 安装效率:5人作业+4天完成+1套工具(5-4-1安装指标)
展开全部
收起


选择颜色
框架材质
查看详情
适用场景
FS铝屋是区别于传统建筑的高端度假模块化房屋,在搭建上不受地形束缚,可建造在高山、平原、沙漠、湖泊、海边等场景。
选配估价
更改配置您的FS
预计交付日期:30
+显示详情
-隐藏详情
精装
豪华

¥48000

¥29000

¥12000

¥6600

¥6800

¥19500

¥19800
¥21500

¥12000
¥18800
¥22000
¥18600
¥16000

¥19800
¥4500
¥9500

¥3000

¥2200

¥88000
¥39700 选配






✕


